マンション
マンション3LDK
最上階で解放感を愉しむジャパンディリノベ

高い天井×最上階の眺望で、嗜好の暮らしを実現
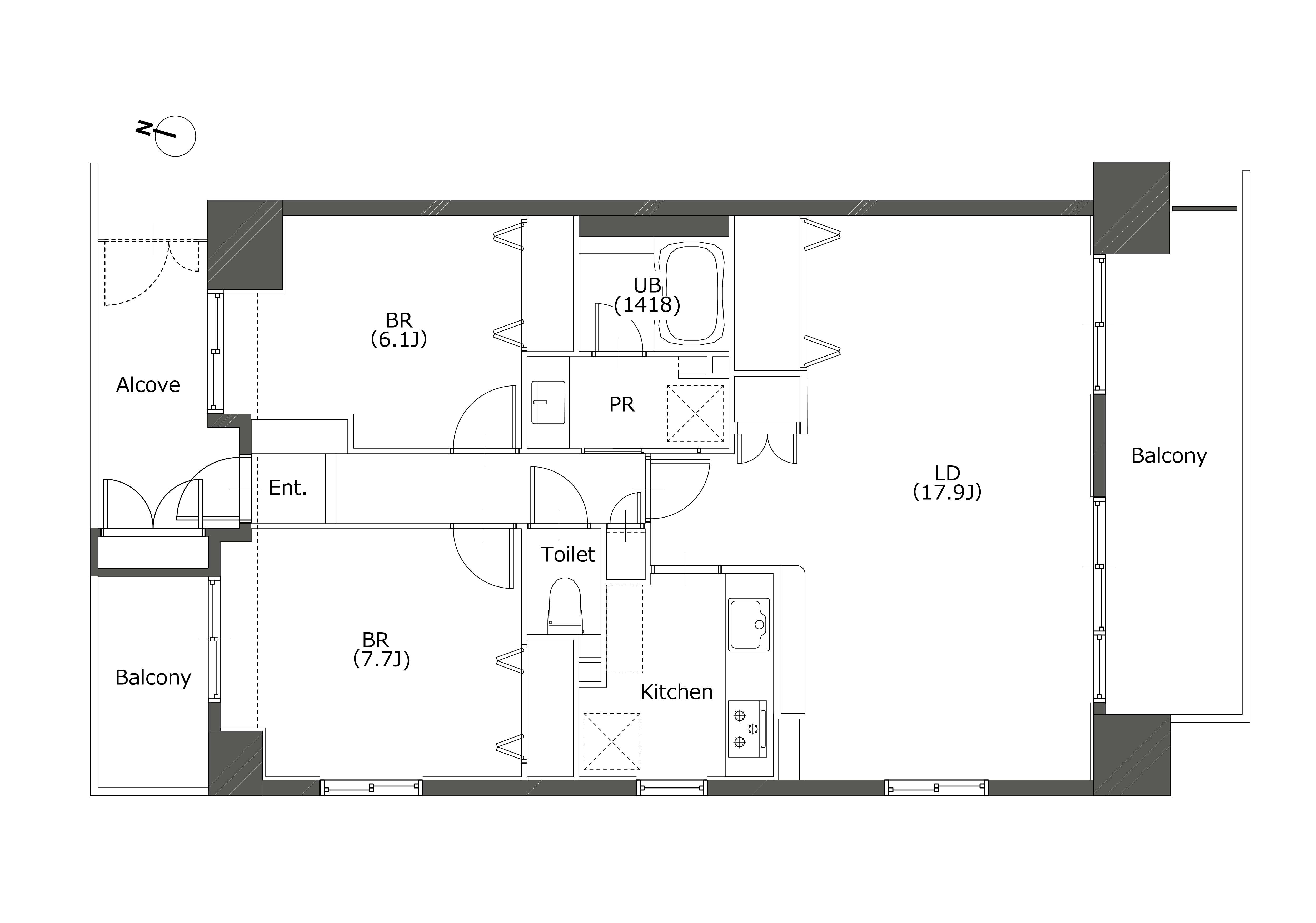
地上14階の最上階の眺望を、お部屋の一部として取り込んだような、その景色までが暮らしの一コマとなるようなリノベーションを目指しました。
ジャパンディモダンな内装デザインは、景色をより一層引き立ててくれています。
開放的な大空間を実現させた、天空の一室を是非ご覧ください!

対面キッチン&ダインングに
対面式のキッチンは、元々壁に囲まれた暗いキッチンでした。
キッチンの位置を移動させてしまうと、排水の関係で大掛かりな工事となってしまうため、なるべく位置を変えない方向で計画しました。
仕切られていた壁をとっぱらい、高さに違いのあった天井をフラットにしたことで下がり天井風にアレンジ。
クロスで天井だけ色を変えてみると、オシャレ感がぐっとアップしました。
ダイニングにはどっしりしすぎない、丸いテーブルをチョイスし優しい印象に。



木調がアクセントに。ハイドアの3連引戸
このお部屋の解放感を実現させるために必要不可欠だったのは、隣の洋室とを間仕切りとなるハイドアの3連引き戸でした。
洋室とリビングの天井高さをフラットに仕上げることで、凹凸のない天井が大空間を演出してくれます。
ナチュラルな木目は、扉を閉めるとお部屋のデザインアクセントとして楽しむこともできます◎
開けても閉めても良さがある、このお部屋の主人公です✨



ガラス張りのリビングドア
リビングドアはお部屋の中で最も慎重に選びたい場所ですよね。
解放感を損なわずに、廊下も明るくできるガラスのドアをチョイスしました。
玄関側から見ると、リビングの様子がチラっと伺えるのも素敵です。
ブラックオークのフレームが、より高級感を感じさせます。
雰囲気が引き締まる、ブラックのドアに是非チャレンジしてみて下さい。

シックで高級感のある浴室&トイレ
シンプルで高級感を感じさせるような浴室とトイレに仕上げました。
石目調の浴室は、まるでホテルの浴場のような雰囲気で、少しリッチなバスタイムに。
トイレはツヤのあるクロスを採用。
ラグジュアリーな雰囲気を出しながらも、落ち着く空間に。

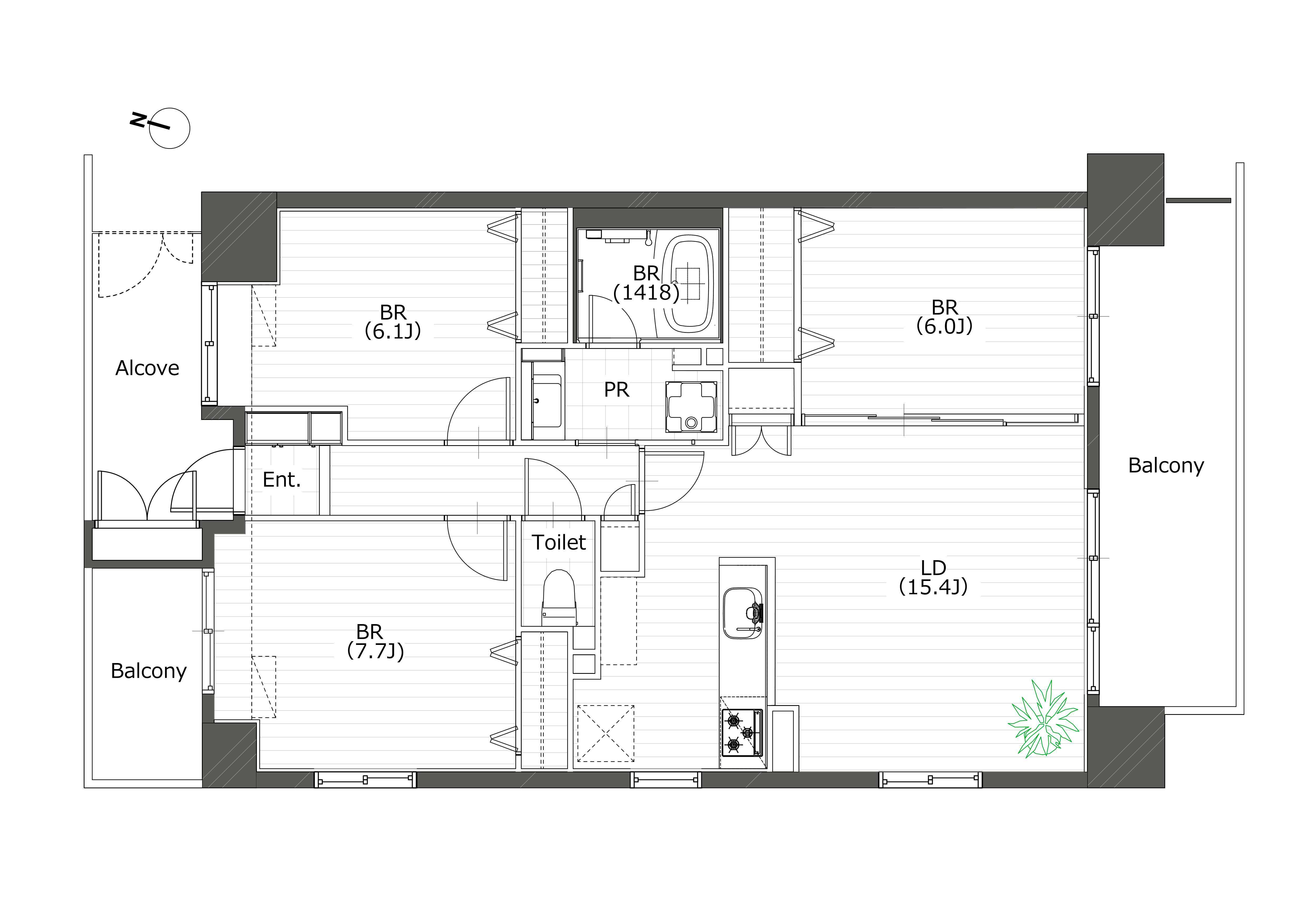
before
お客様名
リノベ済物件
地域
名古屋市守山区
種別
マンション
築年月
1998年3月
間取り
3LDK
面積
80.47㎡
家族構成
-
工事内容
フルリノベーション



















