マンション
マンション3LDK
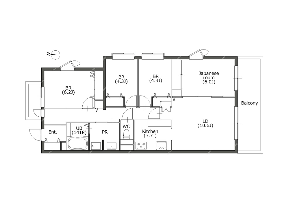
採光&通風を確保したパッシブな団地リノベ
 
2面採光を叶えた間取で、丁寧に暮らす
東南角部屋という条件でありながら、リビングは南西側に寄せられていたお部屋でした。
東側には緑豊かな公園が望むことができましたが、東側は全て居室。
LDKは暗い印象となってしまう少し勿体ない間取でした。
そんなLDKを明るくするために、今回のリノベーションでは南側の和室をリビングと一体とする計画としました。
採光が取れるだけでなく2面の開口から通風も十分に確保。
そんな自然のエネルギーを取り込むパッシブな住まいで、ゆったりと温かい時間を過ごす家族をイメージして計画しました。
窓から公園の豊かな緑を望むことのできる、明るくて涼しい住まいの完成です。

石目調のキッチンで高級感あふれるダイニングに
モノトーンでまとめたキッチンです。
床は汚れに強いサンゲツのフロアタイルを採用。
キッチンは石目調で高級感あふれる印象に。
もともと一つのお部屋のように壁に囲まれた空間でしたが、
不要な壁を取り除いたことでLDとの繋がり感もアップしています。

間接照明を仕込んだ下がり天井
このお部屋の見どころはこの間接照明が仕込まれた天井です。
リビング側はもともと和室があり天井もLDKと比べると少し高さが低かったため、工事費削減のため天井を残したまま間接照明という形で活用しました。
クロスにカラーも切り替えたことで視覚的にゾーニングし、生活にリズムをもたらします。

リビングと繋がるワークスペース
リビングの一角に設けられたワークスペースは、家族の気配を感じながら作業に没頭できるような場所です。
お仕事や読書、お化粧等、その用途は様々。
アクセントクロスとペンダントライトで落ち着いた雰囲気を演出しています。
幅1100、奥行500とスペースもしっかりとあり、作業スペースとして活躍の予感です。

ナチュラルデザインの浴室とトイレ
浴室・トイレ・洗面台はナチュラルな木目調を中心にデザインしました。
洗面台に採用したアイカ工業のスマートサニタリーUは、造作風に見えるデザインで、面材の種類も豊富なためどんな住まいにもオリジナルデザインでフィットします。
丁寧な暮らしにぴったりの、ナチュラルで落ち着く水廻空間です。

ゴールドマテリアルで細部にこだわりを
このお部屋のいたるところに散りばめられたゴールドを探してみて下さい。
細かな場所ですが、華やかで上品な印象を残してくれます。
ドアノブや床の見切り材、照明器具にご注目下さい✨

before
- お客様名 - 自社物件 
- 地域 - 名古屋市北区 
- 種別 - マンション 
- 築年月 - 1998年1月 
- 間取り - 3LDK 
- 面積 - 91.60㎡ 
- 家族構成 - - 
- 工事内容 - フルリノベーション 











 
  
 










