マンション
マンション2LDK
造作小上がりのある大人ヴィンテージな住まい

素材感を楽しむ、アーバンライフ
今回のリノベーションでは、内装を全て解体して空っぽの箱にしてから内装を全て造り変える「フルスケルトンリノベーション」の工事でした。
”素材感を楽しむ”をテーマに、様々な素材の質感を感じられるような計画としました。
天井には仕上げを施さずに躯体のコンクリートをそのまま現しにし、また、床は温かみが感じられる無垢フローリングをチョイス。
このコンクリート×無垢材の異素材合わせをお楽しみいただける一室に仕上がりました。
躯体現しで魅せる、LDK
照明器具は全てダクトレール+スポットライトとしたことで”躯体現し”の天井の雰囲気を壊すことなく保ってくれます。
ヴィンテージの雰囲気のある仕上げと、温かみのある仕上げが織りなす雰囲気は優しい居心地を提供してくれそうな空間に仕上がりました。
また、このお部屋は眺望も良く、千種区の覚王山日泰寺を真正面に臨むことができるところも魅力の一つです。

日が沈み始めると、お部屋の雰囲気にも変化が現れます。
あたたかい色の照明がお部屋を明るくしすぎない程度に、優しく照らすよう計画しました。
オシャレなレストランのような演出の夜の顔は、一日の疲れを癒してくれるような、毎日のディナーが楽しみになるような落ち着く空間です。

磁器質タイルの造作洗面台
造作で制作した洗面台です。
ブルーのタイルがこのお部屋のアクセントカラーに。
磁器質タイルのつやのある質感と、洗面器のステンレスの素材をお楽しみいただけます。
また、まるい鏡は大小2つつけて、お子様と一緒に使うこともできます。
見た目もおしゃれなのでデザインのアクセントとしてもお楽しみいただけます。
廊下に設けているため、家に帰ってきてからどの扉も開けることなく手を洗うことができるところも嬉しいポイントです。

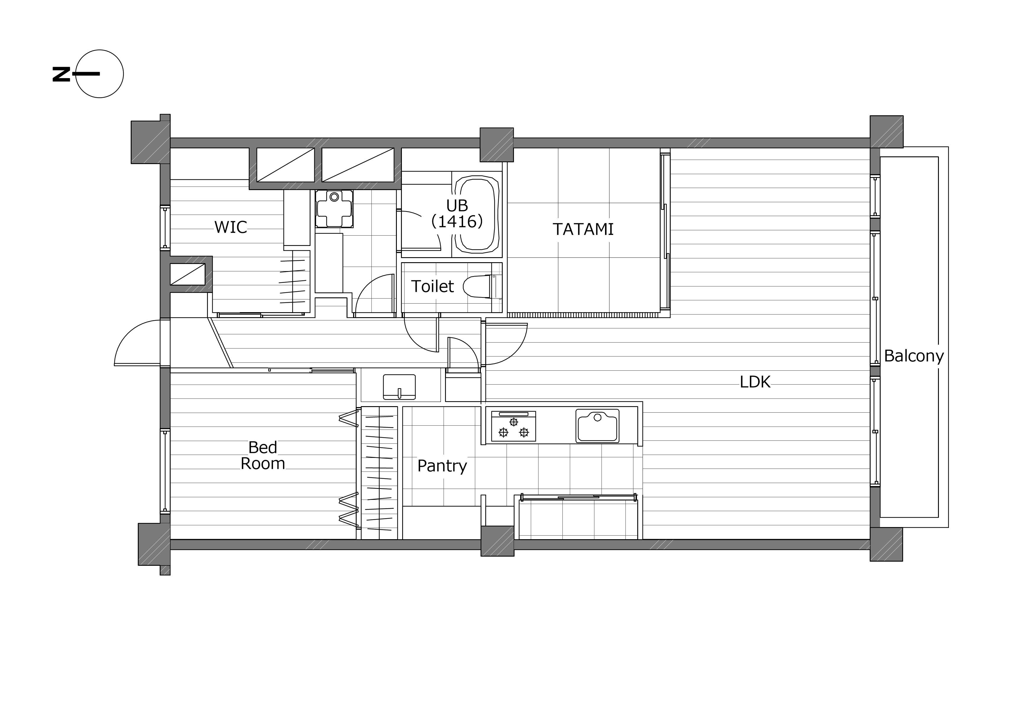
造作小上がり和室
この部屋の主役と言っても過言ではないほど存在感のある「小上がり和室」。
ルーバーと格子で隔てているため、リビングとの繋がり感を残しながらも籠り感のある空間です。
お子様と遊んだり、少しお昼寝をしたり、来客時には個室としても使えるお部屋です。
エアコンを完備しているため、夏場に扉を閉めても熱中症の心配なく過ごすことができます。
床下は収納になっているので、スペースを余すことなく活用しました。



家族が増えても困らない、たっぷり収納
この物件にはたっぷりの収納スペースがあります。
玄関横にあるのは広々としたファミリークローゼット。
アウトドア用品や靴だけでなく、コート等のお洋服もかけておけるスペースを完備しました。
他にも、キッチン横のパントリーには冷蔵庫も隠せてしまうほどの広さうぃ確保。
キッチンの背面には引き戸で隠せる家電収納もあるので、お料理をしていないときは閉めておくことで全部隠すことができます。
ついごちゃついてしまうキッチンも、スマート見えするキッチンに早変わりです。


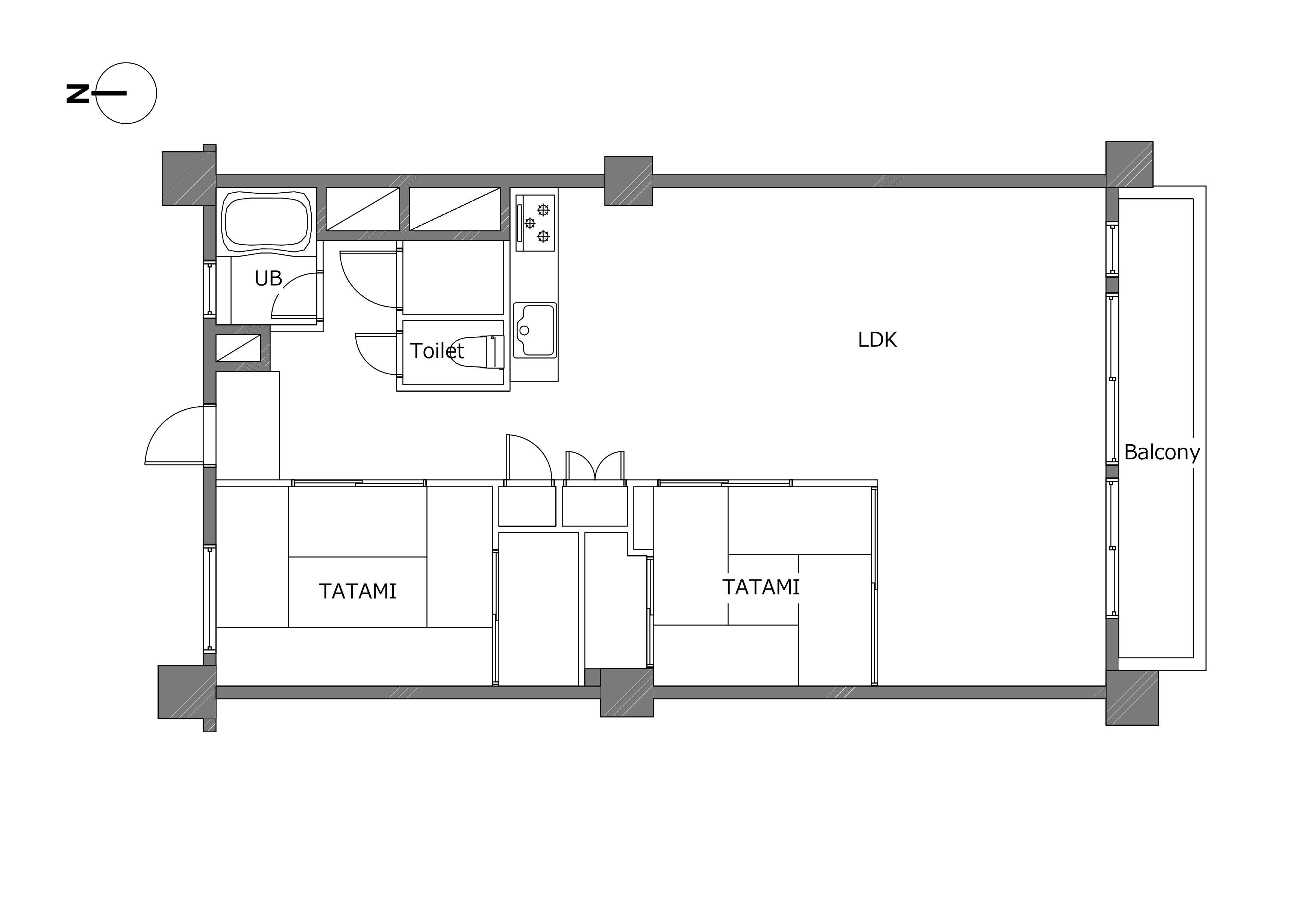
before








お客様名
リノベ済物件
地域
名古屋市千種区
種別
マンション
築年月
1971年10月
間取り
2LDK
面積
77.22㎡
家族構成
-
工事内容
フルリノベーション













